Tumiaru
São Paulo - Sp, BRAZIL
São Paulo - Sp, BRAZIL
Project specifications
Site area - 14.300m²
Building area - 3.000m²
Project beginning - 2018
Construction completion - 2022
Building area - 3.000m²
Project beginning - 2018
Construction completion - 2022
Authors - Fernando Forte, Lourenço Gimenes, Rodrigo Marcondes Ferraz
Managers - Gabriel Faria, Gabriel Mota, Guilherme Prado, Sonia Gouveia
Coordinators - Eduardo Piovesan
Contributors - Carolina Hirata, Cintia Reis, Daniela Zavagli, Flavia Prado, François Caillat, Guilherme Pulvirenti, Larissa Sartori, Mariana Ventorini, Michelle Vasques, Philippe Metropolo, Tais Arevalo, Victor Lucena
Interns - Ana Paula Sapia, Erika Azevedo, Laura Antunes, Mariana Sarto
Photographer - Fran Parente
Real State developer - Patrimônio
Constructor - R. Yazbek
Landscape designer - Tagu
Lighting designer - Castilha
Located on a flat plot with an unconventional geometry, this building in São Paulo offers a very unique solution for its apartments.
When the land was prepared for the building, a house from the original occupation remained unincorporated, resulting in a large cutout and creating a narrow, non-buildable strip along the corner. This strip became almost isolated, allowing us to open it as a small urban plaza — a green space for everyone. Additionally, the idea that the ground floor should be as open to the city as possible, green and free of ostentatious walls and gates, is repeated in the building's main entrance: a welcoming garden extends to the sidewalk, while the access boundaries are set further back. We always keep in mind that urban landscapes and life are also the result of individual projects, not just public planning. In this way, giving some space back to the city ultimately makes it more humane, improving life for everyone — not only for the residents of the new building.
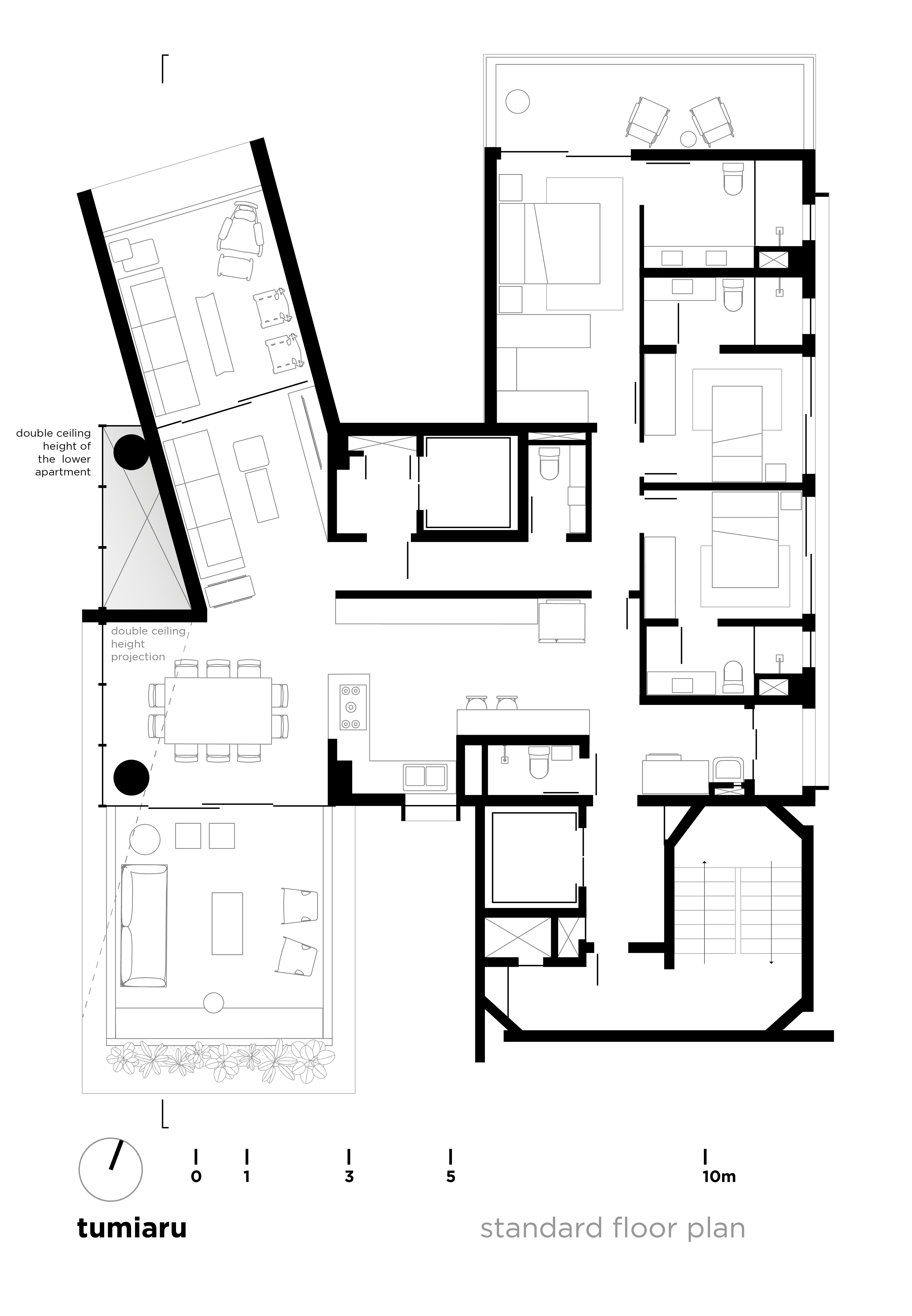
Located near Ibirapuera Park, we thought it would be very interesting if the social areas of the apartments could have a view of the park. An additional challenge was to also create spaces with double-height ceilings. To achieve this goal, the solution was to seek visual gaps between the neighboring buildings. Thus, the 185 m² apartments, with one apartment per floor, were organized into three vertical volumes: to the east, we concentrated the bedrooms in typical floor plans, with the front portion housing the building's fire staircase, marked by a large, solid exposed concrete element; to the west, the social areas were arranged in alternating floor plans, forming a more transparent element that contrasts with the bedroom block; and in the center, set back and acting as a separator between the other volumes, we placed the kitchen and the social elevator.
In the social area, to achieve some spaces with the desired double-height ceilings, the solution was to create alternating floor plans. On one floor, we have the glazed living room facing the front of the building, and the dining room at the back, forming a well-defined volume. On the next floor, the inversion means the solid volume of the dining room projects over the living room below, creating spaces with higher ceilings. The sloped ceiling of the dining room has a dual purpose: the slope emphasizes the independence of this volume, enhancing the contrast between its mass and the glazed void of the dining room; furthermore, it directs the dining room's opening towards the gaps between neighboring buildings, allowing a view toward the park.
While the distinct concrete block of the east wing rests directly on the ground, the volume housing the living rooms is supported on a large floating object. The building's first floor accommodates part of the vehicle spaces, complementing the underground parking. Clad in white hydraulic tiles, the above-ground garage forms a closed volume that hovers over an open and fluid ground level. The main pedestrian entrance is located in the gap between this white block and the exposed concrete tower, creating a space with a high, dramatic ceiling. Entering through the garden integrated into the sidewalk, visitors access the lobby through this void, which simply features a reflecting pool. Reflected in it, the landscape of the back garden showcases the openness and integration between the building's interior and exterior. The lack of a barrier between the lobby and the garden emphasizes the connection and spaciousness of the area that houses the party room, games room, and playroom. Outside, a glass-walled pavilion surrounded by greenery accommodates the gym.