noar
curitiba - pr, BRAZIL
Project specifications
Site area - 1.370m²
Building area - 15.000m²
Project beginning - 2020
Construction completion - under construction
Building area - 15.000m²
Project beginning - 2020
Construction completion - under construction
Authors - Fernando Forte, Lourenço Gimenes, Rodrigo Marcondes Ferraz
Managers - Daniel Paranhos, Gabriel Mota
Coordinators - Talita Broering, Thiago Brito
Contributors - Brunna Kronbauer, Carlos Eduardo, Daniel Cruz, Guilherme Braga, Guilherme Canadeu, Roberta Sá, Vitor Delpizzo
Interns - Ana Paula Sapia, Mariana Sarto
Renders - Mobius
Real State developer - Neolar
Landscape designer - Ricardo Cardim
Interiors - Giuliano Marchiorato
.The street in the Cabral neighborhood of Curitiba is relatively quiet and lined with trees. Although apartment buildings are not new to the area, the remaining houses lend it an atmosphere we wanted to convey in the project.
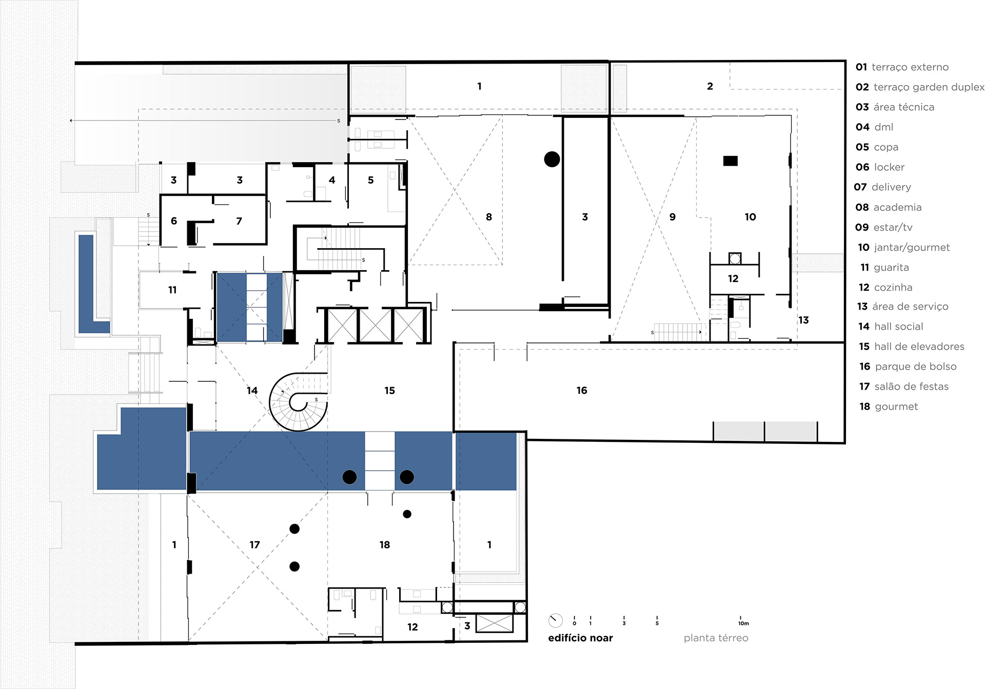
The development presents itself delicately: on the ground floor, instead of fences and walls, there is a generously open garden facing the city, with a glass enclosure discreetly defining access to the private areas. The reflecting pool that flows toward the sidewalk extends into the interior of the ground floor: it separates the lobby and the event space while guiding the eye diagonally between the inside and outside, both at the front and at the back of the lot.
Just above this double-height void, 53 units ranging from 84 to 386 m² are arranged in small clusters of two or three floors. Stacked atop one another, each cluster has its own geometry, combining the program and regulatory guidelines with the desire to create sets of floating houses surrounded by terraces, voids, pergolas, and gardens.
As though we had vertically reproduced the street itself, the ensemble of small, independent blocks results in a building with varied volumes, standing apart from the uniform residential towers commonly seen in Brazilian cities. Instead of a clear, monolithic object, we have a composition of voids in which vegetation—set against exposed concrete—takes center stage.
Noar challenges the notion that cities must be rigid, formed by solid buildings that work against the scale of the user. Here, what stands out is precisely the porosity and subtlety of a gentle transition between inside and outside, and between building and city.
The development presents itself delicately: on the ground floor, instead of fences and walls, there is a generously open garden facing the city, with a glass enclosure discreetly defining access to the private areas. The reflecting pool that flows toward the sidewalk extends into the interior of the ground floor: it separates the lobby and the event space while guiding the eye diagonally between the inside and outside, both at the front and at the back of the lot.
Just above this double-height void, 53 units ranging from 84 to 386 m² are arranged in small clusters of two or three floors. Stacked atop one another, each cluster has its own geometry, combining the program and regulatory guidelines with the desire to create sets of floating houses surrounded by terraces, voids, pergolas, and gardens.
As though we had vertically reproduced the street itself, the ensemble of small, independent blocks results in a building with varied volumes, standing apart from the uniform residential towers commonly seen in Brazilian cities. Instead of a clear, monolithic object, we have a composition of voids in which vegetation—set against exposed concrete—takes center stage.
Noar challenges the notion that cities must be rigid, formed by solid buildings that work against the scale of the user. Here, what stands out is precisely the porosity and subtlety of a gentle transition between inside and outside, and between building and city.
.The street in the Cabral neighborhood of Curitiba is relatively quiet and lined with trees. Although apartment buildings are not new to the area, the remaining houses lend it an atmosphere we wanted to convey in the project.
The development presents itself delicately: on the ground floor, instead of fences and walls, there is a generously open garden facing the city, with a glass enclosure discreetly defining access to the private areas. The reflecting pool that flows toward the sidewalk extends into the interior of the ground floor: it separates the lobby and the event space while guiding the eye diagonally between the inside and outside, both at the front and at the back of the lot.
Just above this double-height void, 53 units ranging from 84 to 386 m² are arranged in small clusters of two or three floors. Stacked atop one another, each cluster has its own geometry, combining the program and regulatory guidelines with the desire to create sets of floating houses surrounded by terraces, voids, pergolas, and gardens.
As though we had vertically reproduced the street itself, the ensemble of small, independent blocks results in a building with varied volumes, standing apart from the uniform residential towers commonly seen in Brazilian cities. Instead of a clear, monolithic object, we have a composition of voids in which vegetation—set against exposed concrete—takes center stage.
As though we had vertically reproduced the street itself, the ensemble of small, independent blocks results in a building with varied volumes, standing apart from the uniform residential towers commonly seen in Brazilian cities. Instead of a clear, monolithic object, we have a composition of voids in which vegetation—set against exposed concrete—takes center stage.
Noar challenges the notion that cities must be rigid, formed by solid buildings that work against the scale of the user. Here, what stands out is precisely the porosity and subtlety of a gentle transition between inside and outside, and between building and city.