MOOU
São Paulo - Sp, BRAZIL
Project specifications
Site area - 1.200m²
Building area - 6.477m²
Project beginning - 2014
Construction completion - 2020
Building area - 6.477m²
Project beginning - 2014
Construction completion - 2020
Authors - Fernando Forte, Lourenço Gimenes, Rodrigo Marcondes Ferraz
Managers - Ana Paula Barbosa, Sonia Gouveia
Contributors - Alessandra Musto, Carla Bonfante, Carla Facchini, Carla Soffi, Caroline Endo, Fernanda Veríssimo, Juliana Cadó, Ligia Meirelles, Mariana Lazero, Wanessa Simoe
Interns - Giovanna Albuquerque, Gabriela Eberhardt, Rafael Mourão, Otavio Araújo
Photographer - Fran Parente
Real State developer and constructor - SKR
Landscape designer - Camila Vicari
Interior design - SuperLimão
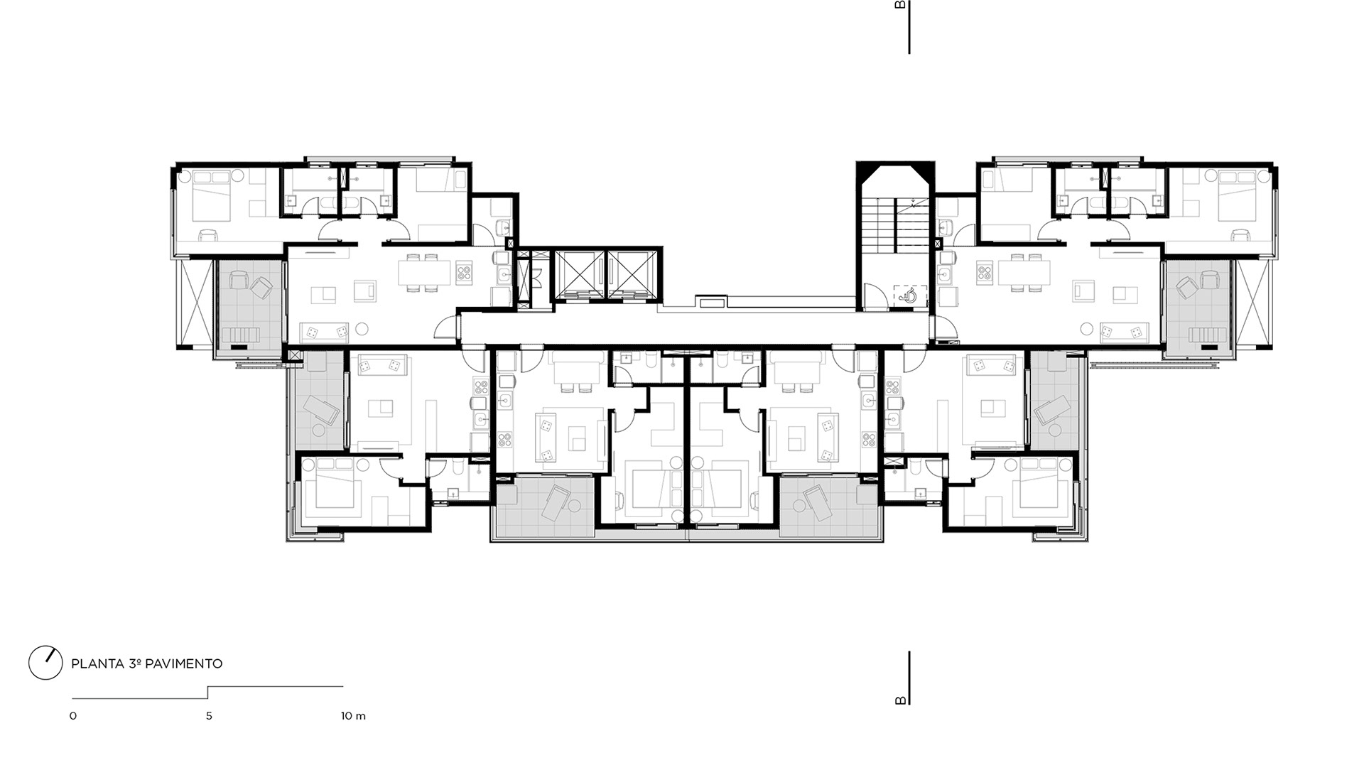
.Rua Mourato Coelho is one of the busiest streets in the bohemian neighborhood of Vila Madalena. On its last block, however, the nightlife energy gives way to a sloping street with a beautiful view toward the sunset. On this stretch, on a 1,200 m² site, we designed an eight-story building offering nine different apartment typologies.
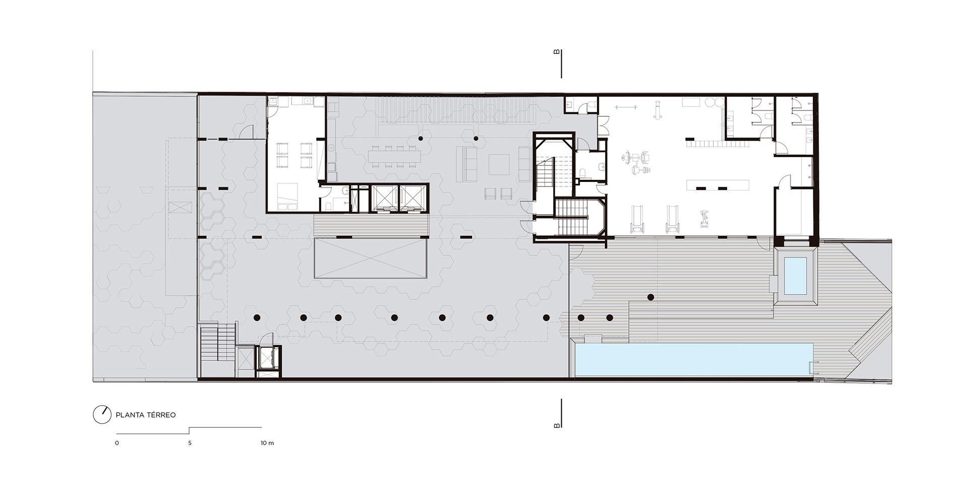
Due to the topography, the building’s ground floor sits 3 meters above sidewalk level, creating an elevated private plaza. To prevent the garage from presenting itself as an aggressive element within the pedestrian landscape, we proposed a fully open urban recess facing the sidewalk, achieved by setting back the basement level beyond the required limit. A modest gesture, yet one firmly confident in its value.
Access to the building is through this small plaza, marked by a simple, continuous plane of perforated metal. Above it, two volumes float: the one on the left, larger and heavier, is defined by its exposed concrete structure and transgresses the ground-floor boundary, leaning over the small plaza. The smaller volume, attached to the right side of the larger one, is more restrained: white, with fewer floors, it has an elevated base and limited height, clearly distinguishing the two volumes. More than that, however, it creates a double-height space in the elevated plaza, resulting from the elimination of this volume’s first floor. Within this space, a large covered plaza articulates the building’s common areas.
The reinforced concrete volume, which appears visually heavier, is in fact the lighter one: inside, a large atrium over a garden organizes an open circulation serving the apartments. This volume contains two larger apartments per floor, while its counterpart accommodates four units per floor. At the rooftop level, all apartments have access to outdoor areas, enjoying beautiful views toward Alto de Pinheiros and the sunset.