SANTOS - SP, BRAZIL
Project specifications
Site area - 5.160m²
Building area - 4.410m²
Project beginning - 2014
Construction completion - 2022
Building area - 4.410m²
Project beginning - 2014
Construction completion - 2022
Team
Authors - Fernando Forte, Lourenço Gimenes, Rodrigo Marcondes Ferraz
Managers - Sonia Gouveia
Contributors - Caroline Endo, Daniela Zavagli, Fernanda Veríssimo, Juliana Cadó, Wanessa Simoe, Rodrigo de Moura, Tatiane Garcia
Interns - Alessandra Musto, Yara Bello
Photographer - Fran Parente
Landscape designer - Gil Fialho
Lighting designer - Castilha
.
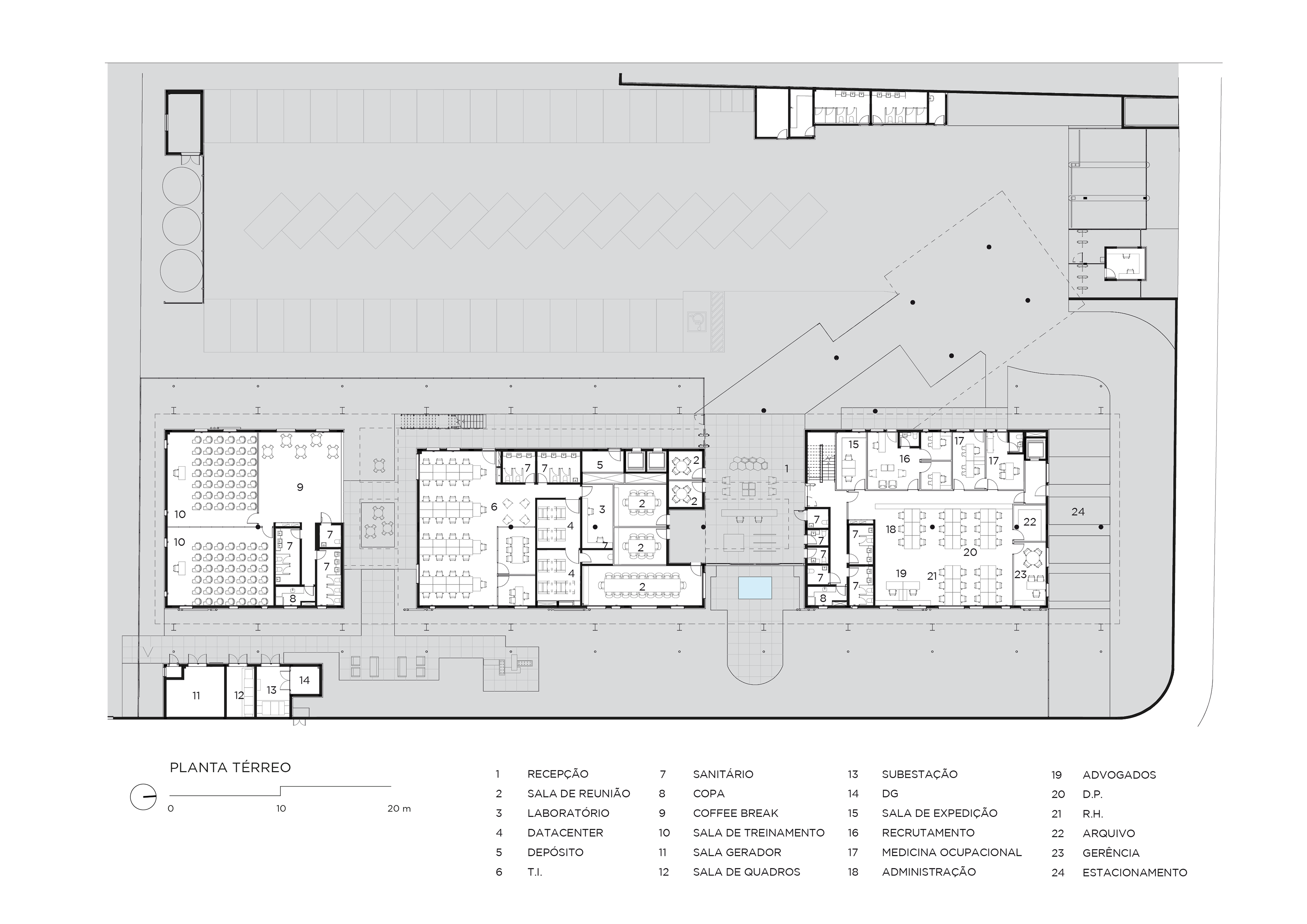
Located next to the port of Santos, this building incorporates the aesthetics of warehouses and containers in its architecture, intrinsic elements of the way the port intelligence company Marimex operates, which carries out maritime and road transport, among other activities.
Thus, the objective for the building was to house approximately five hundred employees in a comfortable building suitable for the company's various activities and to convey, through innovative architecture, the company's principles and identity.
The building's constructive logic is the construction of a large roof supported by metal pillars and beams, which houses a series of volumes with a concrete structure below. These volumes are stacked in an almost random way, leaving gaps between them, where balconies and voids are located. The closed volumes house the company's various departments, while the balconies are simultaneously leisure spaces and a buffer zone for future office expansions.
Thus, the objective for the building was to house approximately five hundred employees in a comfortable building suitable for the company's various activities and to convey, through innovative architecture, the company's principles and identity.
The building's constructive logic is the construction of a large roof supported by metal pillars and beams, which houses a series of volumes with a concrete structure below. These volumes are stacked in an almost random way, leaving gaps between them, where balconies and voids are located. The closed volumes house the company's various departments, while the balconies are simultaneously leisure spaces and a buffer zone for future office expansions.