CAMPINAS
CAMPINAS - SP, BRAZIL
Project specifications
Site area - 830m²
Building area - 2.095m²
Project beginning - 2019
Construction completion - 2025
Building area - 2.095m²
Project beginning - 2019
Construction completion - 2025
Team
Authors - Fernando Forte, Lourenço Gimenes, Rodrigo Marcondes Ferraz
Managers - Desyree Niedo, Gabriel Mota, Sonia Gouveia, Talita Broering
Coordinators - Philippe Metropolo, Priscylla Hayashi
Contributors - Breno Quaioti, Bruno Suman, Daniela Zavagli, François Caillat, Gabriel Baptista, Giovanna Pirovani, Guilherme Prado, Guilherme Pulvirenti, João Baptistella, Karina Nakaura, Maíra De Benedetto, Mariana Sarto, Victor Lucena, Victoria Ananyan
Interns - Ana Paula Sapia, Henrique Dias, José Carlos Navarro, Michelle Vasques
Photographer - Manuel Sá
Constructor - Sigla Engenharia
Landscape designer - Juliana Freitas
Lighting designer - Castilha
.
On an urban plot along a busy thoroughfare in the city of Campinas, we developed the new store for Lider Interiores, a traditional Brazilian furniture brand.
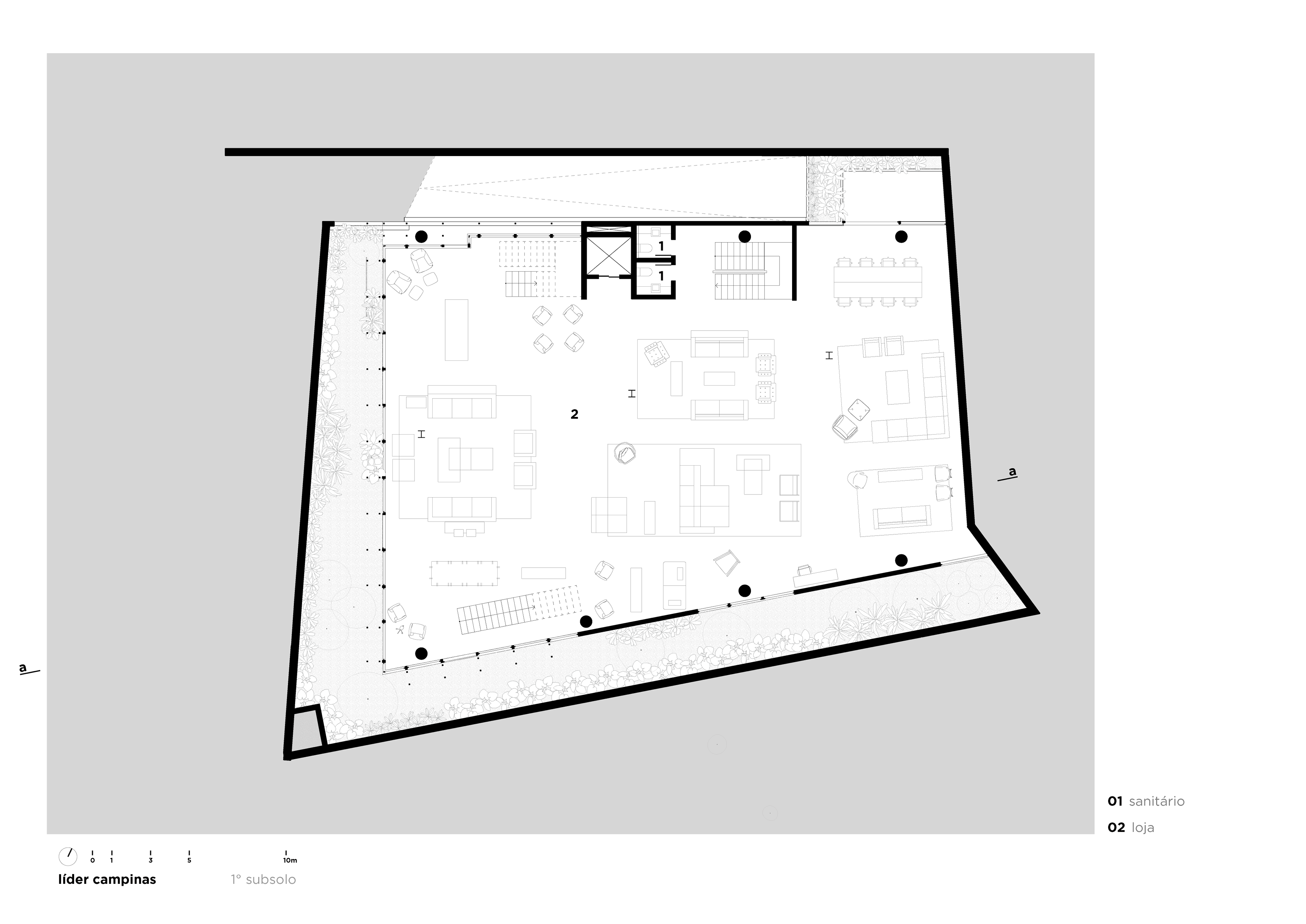
Given the need for a large retail space, high development potential, and expansive, open-plan areas without partitions—allowing for the constant layout changes typical of a showroom—we organized a primary peripheral concrete structure, featuring robust columns and a large beam on the top floor. The secondary structure, attached to the exposed concrete frame, is made of steel, enabling large spans and suspended mezzanines.
We proposed the main entrance on the first floor, accessed via a simple footbridge that allows pedestrians to overlook the large sunken ground floor, which opens onto the side gardens. This walkway leads to a sequence of mezzanines, slightly offset in height beneath a central atrium, allowing visitors to immediately perceive the next level—featuring a front balcony—as well as the third floor, encouraging circulation throughout the entire store. At the top, a generous rooftop terrace completes the concept, creating an open venue for events and brand-related launches.