JAPAN
HOUSE
SÃO PAULO - SP, BRAZIL
Project specifications
Building area - 9.900m²
Project beginning - 2015
Construction completion - 2017
Project beginning - 2015
Construction completion - 2017
Team
Authors - Fernando Forte, Lourenço Gimenes, Rodrigo Marcondes Ferraz
Managers - Gabriel Mota, Sonia Gouveia
Contributors - Alessandra Musto, Desyree Niedo, Fernanda Veríssimo, Joel Bages, Mariana Leme, Talita Broering, Tatiane Garcia, Wanessa Simoe
Interns - Isabel Ventre, Pedro Ocanhas, Rafael Colombo
Photographer - Rafaela Netto
Constructor - TODA construtora
Landscape designer - Alex Hanazaki
Lighting designer - Foco LD
The project is a partnership between Kengo Kuma and FGMF.
It is centered around the figure of Japan, in terms of identity, but it also brings a local contribution—not only through our workforce, but also through Brazilian elements that have been incorporated into the architecture.
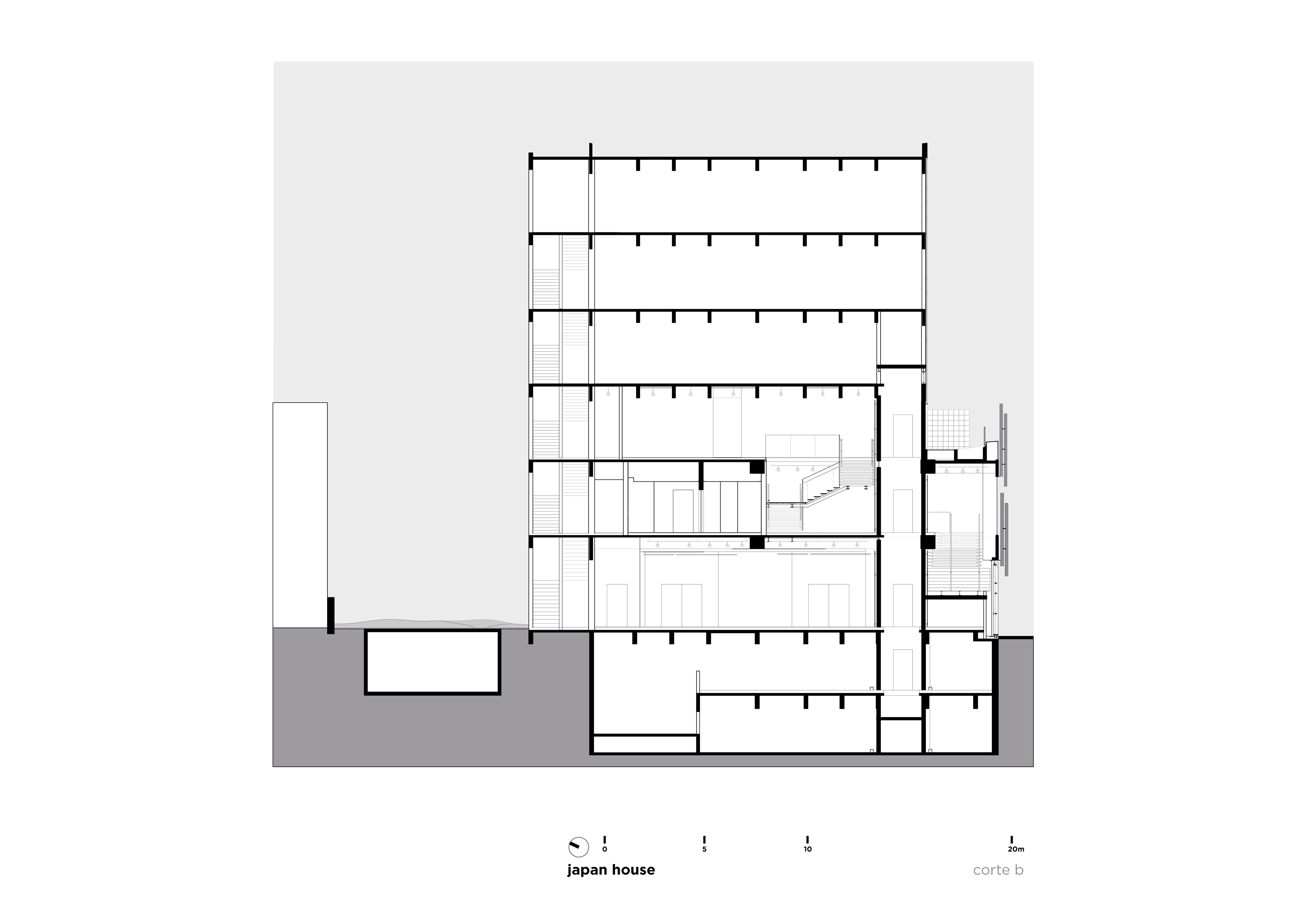
Structurally speaking, the major interventions were the installation of the stairwell and elevator shafts. This involved significant structural reinforcements and the cutting of elements in the reinforced concrete building, which is already several decades old. The premise was to understand the existing structure.
The façade pays homage to Brazilian modernist architecture through the use of cobogós (hollow concrete elements) made from high-performance fiber-reinforced concrete—thin yet strong. In addition, the façade also features Japanese wood, manufactured and assembled in Japan, then reassembled in Brazil using an ancient Eastern technique combined with new carbon fiber technology.
One of the challenges of the project was ensuring thermal comfort within the building, as Japan House will host exhibitions, classes, lectures, and other events. We also aimed for as much natural lighting as possible, allowing daylight to enter even in areas where sun shading was installed.
The program was divided in a very fluid manner, with only a few spaces pre-defined—such as administration, the library, the store, and the restaurant. The other areas are highly flexible. The administration, as well as the restaurant, is located on the second floor, toward the back of the level, hidden from public view. On the first floor are the multipurpose studios—rooms with highly flexible layouts, designed to host lectures, training sessions, and courses related to Japanese culture.
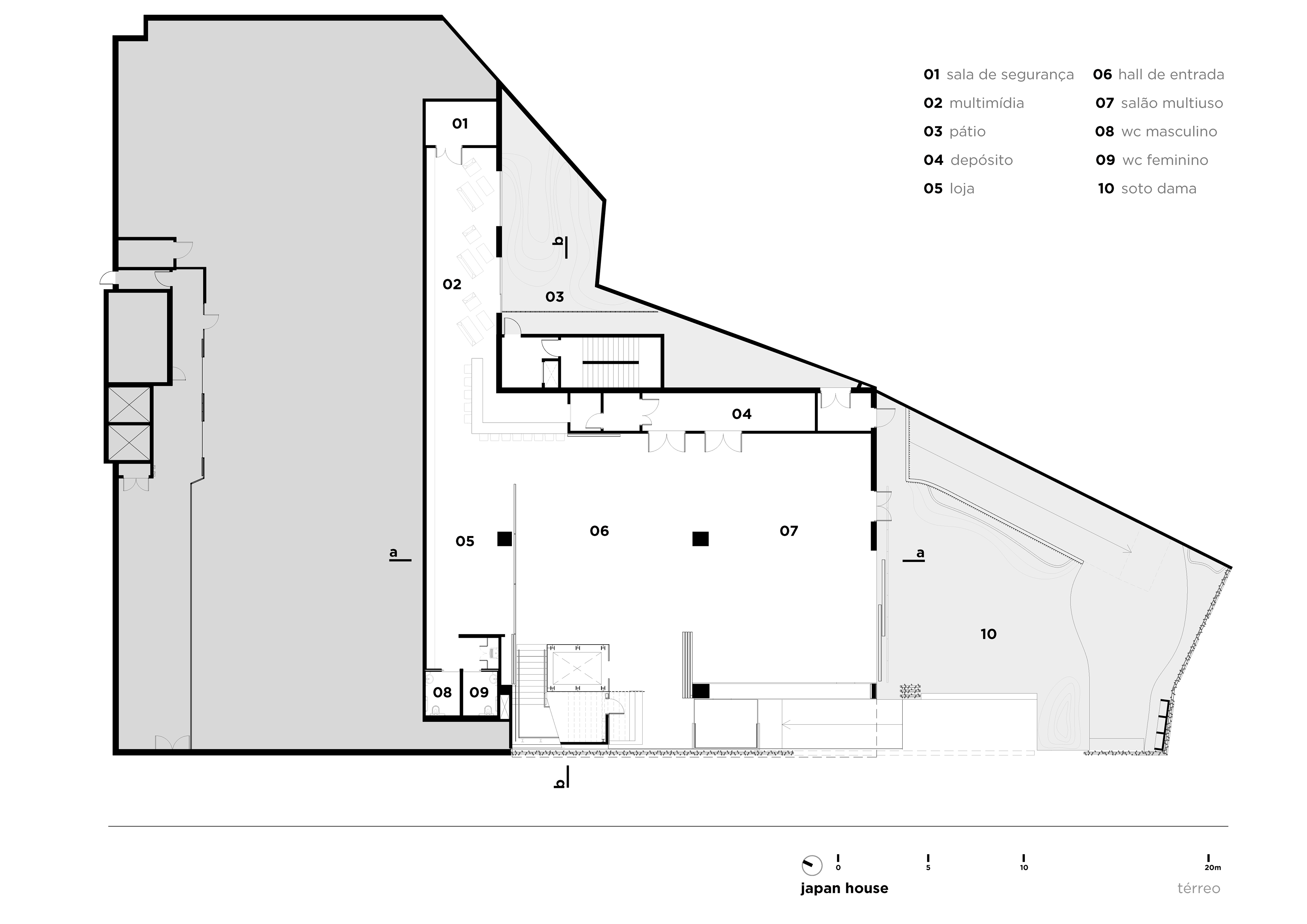
On the ground floor are the exhibition spaces and the café, which open up to the street. In this area, large doors open onto a small plaza that is almost a continuation of Osvaldo Cruz Square and also of the sidewalk. When the Japan House doors are open, this space allows for an almost complete integration between the indoor and outdoor environments. The aim of the project is to allow for this flexibility of programs.
It is centered around the figure of Japan, in terms of identity, but it also brings a local contribution—not only through our workforce, but also through Brazilian elements that have been incorporated into the architecture.
Structurally speaking, the major interventions were the installation of the stairwell and elevator shafts. This involved significant structural reinforcements and the cutting of elements in the reinforced concrete building, which is already several decades old. The premise was to understand the existing structure.
The façade pays homage to Brazilian modernist architecture through the use of cobogós (hollow concrete elements) made from high-performance fiber-reinforced concrete—thin yet strong. In addition, the façade also features Japanese wood, manufactured and assembled in Japan, then reassembled in Brazil using an ancient Eastern technique combined with new carbon fiber technology.
One of the challenges of the project was ensuring thermal comfort within the building, as Japan House will host exhibitions, classes, lectures, and other events. We also aimed for as much natural lighting as possible, allowing daylight to enter even in areas where sun shading was installed.
The program was divided in a very fluid manner, with only a few spaces pre-defined—such as administration, the library, the store, and the restaurant. The other areas are highly flexible. The administration, as well as the restaurant, is located on the second floor, toward the back of the level, hidden from public view. On the first floor are the multipurpose studios—rooms with highly flexible layouts, designed to host lectures, training sessions, and courses related to Japanese culture.
On the ground floor are the exhibition spaces and the café, which open up to the street. In this area, large doors open onto a small plaza that is almost a continuation of Osvaldo Cruz Square and also of the sidewalk. When the Japan House doors are open, this space allows for an almost complete integration between the indoor and outdoor environments. The aim of the project is to allow for this flexibility of programs.