HEINEMANN HOUSE
SÃO PAULO - SP, BRAZIL
Project specifications
Site area - 274m²
Building area - 285m²
Building area - 285m²
Project beginning - 2019
Construction completion - 2024
Construction completion - 2024
Team
Authors - Fernando Forte, Lourenço Gimenes, Rodrigo Marcondes Ferraz
Managers - Desyree Niedo, Gabriel Mota, Sonia Gouveia
Coordinators - Felipe Fernandes, João Baptistella, Letícia Gonzalez, Philippe Metropolo, Guilherme Prado
Contributors - Bárbara Dolabella, Bruno Suman, Daniela Zavagli, Everton Penariol, François Caillat, Gabriel Lunardi, Guilherme Leite, Guilherme Pulvirenti, Izabela Veloso, Maíra de Benedetto, Mariana Sarto, Nathalia Gaddini, Renan Rinaldi, Tais Arevalo, Victor Lucena
Interns - Flávia Moura, Giovanna Pirovani, Giovanna Custodio, Henrique Dias, Lucas Paiva
Photographer - Fran Parente
Constructor - CPA Engenharia e Construções
Landscape designer - Gil Fialho Paisagismo
Lighting designer - Castilha
.
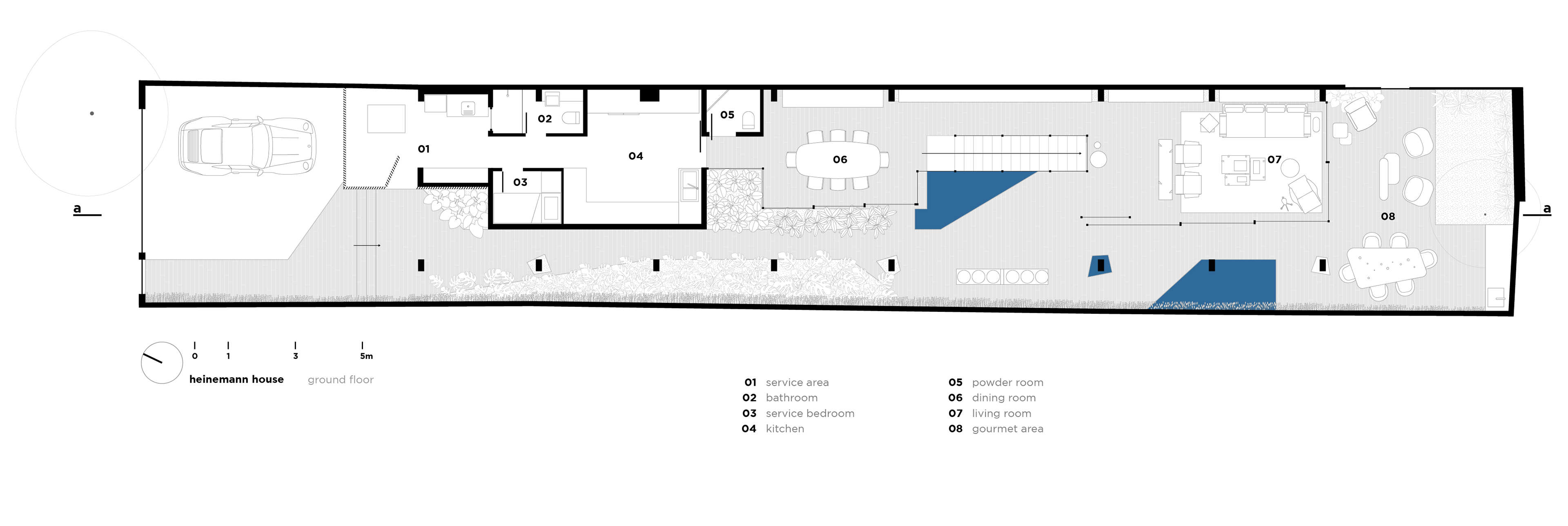
An open house integrated with the garden, featuring fluid and generous spaces. The description sounds reasonable—if not for the challenge of designing on a plot of only 280m². Located in São Paulo, in a green neighborhood, the narrow rectangular lot was used to its full extent. Positioned on the left side of the plot and attached to the neighboring building, we freed up the right portion to create a linear garden that guides visitors directly to the back of the house, where we concentrated the social areas and a wider garden. This path runs along a raised walkway, flanked by a recessed garden and reflecting pool, giving the sensation that the house floats alongside the vertical garden that covers the entire right-hand wall.
A sequence of timber-structured porticos creates a rhythm along the path, making wood a presence from the moment of entry. Light and spaced apart, detached from the main volume of the house, they belong both to the house and to the garden, defining the path as a transitional space between indoors and outdoors. These elements are made of glulam (glued-laminated timber) and, as they are exposed to the elements, they are clad with a sacrificial wooden layer. The bracing of the porticos is done with steel rods, allowing the structural solution to become a fundamental part of the architectural language of the house.
The porticos extend over the house and are supported by an exposed concrete wall that marks the boundary with the neighbor on the left. The glulam elements are complemented by CLT (cross-laminated timber) slabs on the two upper floors of the house. Treated to remain exposed, the slabs highlight the construction system in nearly all areas of the home.
Composed of three floors, the top level houses a leisure area with a spa at treetop height. Protected from direct sunlight by a metal cobogó, this floor rests on the wooden portico and stands apart from the two floors below.
In this project, wood was used to emphasize both the lightness of the structure and its beautiful natural color and texture.
A sequence of timber-structured porticos creates a rhythm along the path, making wood a presence from the moment of entry. Light and spaced apart, detached from the main volume of the house, they belong both to the house and to the garden, defining the path as a transitional space between indoors and outdoors. These elements are made of glulam (glued-laminated timber) and, as they are exposed to the elements, they are clad with a sacrificial wooden layer. The bracing of the porticos is done with steel rods, allowing the structural solution to become a fundamental part of the architectural language of the house.
The porticos extend over the house and are supported by an exposed concrete wall that marks the boundary with the neighbor on the left. The glulam elements are complemented by CLT (cross-laminated timber) slabs on the two upper floors of the house. Treated to remain exposed, the slabs highlight the construction system in nearly all areas of the home.
Composed of three floors, the top level houses a leisure area with a spa at treetop height. Protected from direct sunlight by a metal cobogó, this floor rests on the wooden portico and stands apart from the two floors below.
In this project, wood was used to emphasize both the lightness of the structure and its beautiful natural color and texture.