GIRASSOL
SÃO PAULO - SP, BRAZIL
Project specifications
Site area - 1.200m²
Building area - 4.475m²
Project beginning - 2018
Construction completion - 2021
Building area - 4.475m²
Project beginning - 2018
Construction completion - 2021
Team
Authors - Fernando Forte, Lourenço Gimenes, Rodrigo Marcondes Ferraz
Managers - Daniel Paranhos
Contributors - Carolina Ferraz, Fernanda Moura, Kaila Bissolotti, Paula Schenini, Tânia Rodriguez, Thais Fuchs, Victor Lucena
Interns - Caio Caccaos, Giancarllo Bruno, Izabela Salgado, Patrícia Carvalho
Photographer -Fran Parente
Real State Developer - 3Z Realty
Constructors - Exemplar
Landscape designer - Gabriella Ornaghi
Lighting designer - Castilha
.
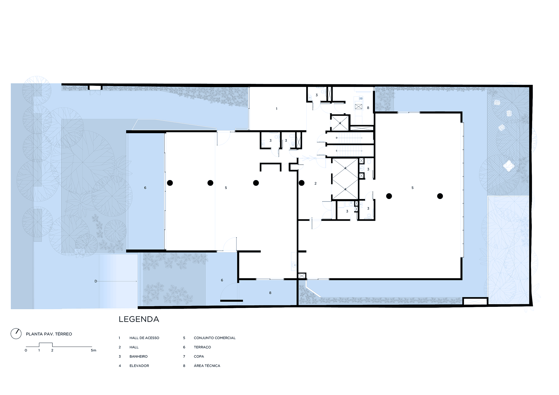
The design aimed to create corporate spaces that differ from the usual, incorporating duplex or triplex units with high ceilings and mezzanines that could be adapted to future users’ needs. The developer, Idea Zarvos, wanted to apply concepts used in the Corujas building, also designed by us, within the context of a high-rise tower featuring abundant natural light, cross-ventilation, usable balconies, and greenery.
After studying several versions and different configurations, considering the complexities of fire department requirements and legislation, we arrived at a design with an active façade and lobby on the ground floor, three consecutive triplex units, three duplex units, and a space with an extra-height ceiling that opens onto a plaza on the 17th floor. This space features extensive greenery in a suspended plaza on the 18th floor, intended to be a flexible area—envisioned as a restaurant to take advantage of the plaza and the stunning views from that height, but the final proposal will be validated by the end tenant. The top two floors are residential rental apartments with various sizes and layouts.
The building’s volumetric design was conceived using rectangles with either single or double heights, projecting outward as balconies, calculated according to regulations floor by floor. Above these balconies, extensive planters with large trees, designed by Rodrigo Oliveira, aim to integrate landscaping at various levels of the building while enhancing the greenery on Cardeal Arcoverde, which is quite sparse. The same balcony volumes, nearly zeroed out, are combined with window panels that either open like casement windows or slide open, contributing to the building’s overall appearance. On the ground floor, wide setbacks create necessary pedestrian space at this important corner, which currently suffers from minimal sidewalks.