DIGITAL
FIRM
SÃO PAULO - SP, BRAZIL
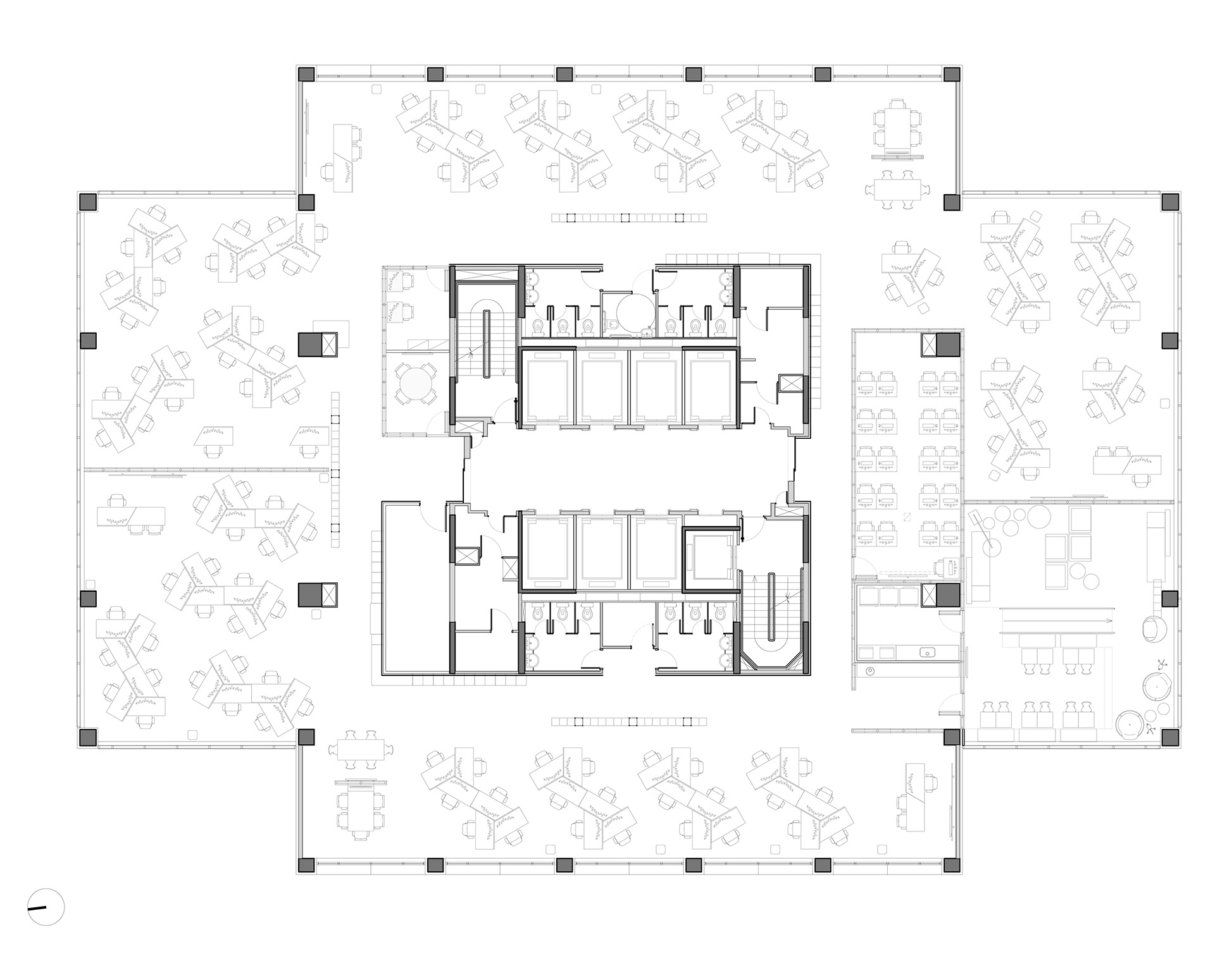
Project specifications
Building area - 3.730m²
Project beginning - 2017
Construction completion - 2018
Project beginning - 2017
Construction completion - 2018
Team
Authors - Fernando Forte, Lourenço Gimenes, Rodrigo Marcondes Ferraz
Managers - Gabriel Mota, Sonia Gouveia
Contributors - Alessandra Musto, Ana Orefice, Beatriz Brandt, Carolina Magliari, Daniela Zavagli, Desyree Niedo, Eduardo Vale, Felipe Fernandes, João Baptistella, Juliana Cadó, Mariana Lazero, Mariana Leme, Priscylla Hayashi, Rafael Saito
Interns - Aryane Diaz
Photographer - Fran Parente
Constructor - PBA Engenharia, Foco Engenharia
Landscape designer - Rodrigo Oliveira
Lighting designer - Castilha
.