CUMARU
HOUSE
BARUERI - SP, BRAZIL
Project specifications
Site area - 730m²
Building area - 1.275m²
Project beginning - 2018
Construction completion - 2020
Building area - 1.275m²
Project beginning - 2018
Construction completion - 2020
Team
Authors - Fernando Forte, Lourenço Gimenes, Rodrigo Marcondes Ferraz
Managers - Gabriel Mota e Sonia Gouveia
Contributors - André Grippi, Ana Carolina Baptistella, Bruno Barone, Beatriz Brandt, Caio Armbrust, Cintia Reis, Daniel Guimarães, Daniela Zavagli, Desyree Niedo, Felipe Fernandes, Franciele Almeida, François Caillat, Guilherme Prado, Guilherme Pulvirenti, Letícia Gonzalez, Mariana Lazero, Philippe Metropolo, Victor Lucena
Interns - Beatriz Cambur, Giovanna Custódio, Giulia Lorenzi, Guilherme Braga, Henrique Dias, José Carlos Navarro, Marina Almeida, Matheus Soares, Michelle Vasques, Raquel Gregorio
Photographer - Fran Parente
Constructor - RMR
Constructor - RMR
Landscape designer - Daniel Nunes
Lighting designer - Castilha
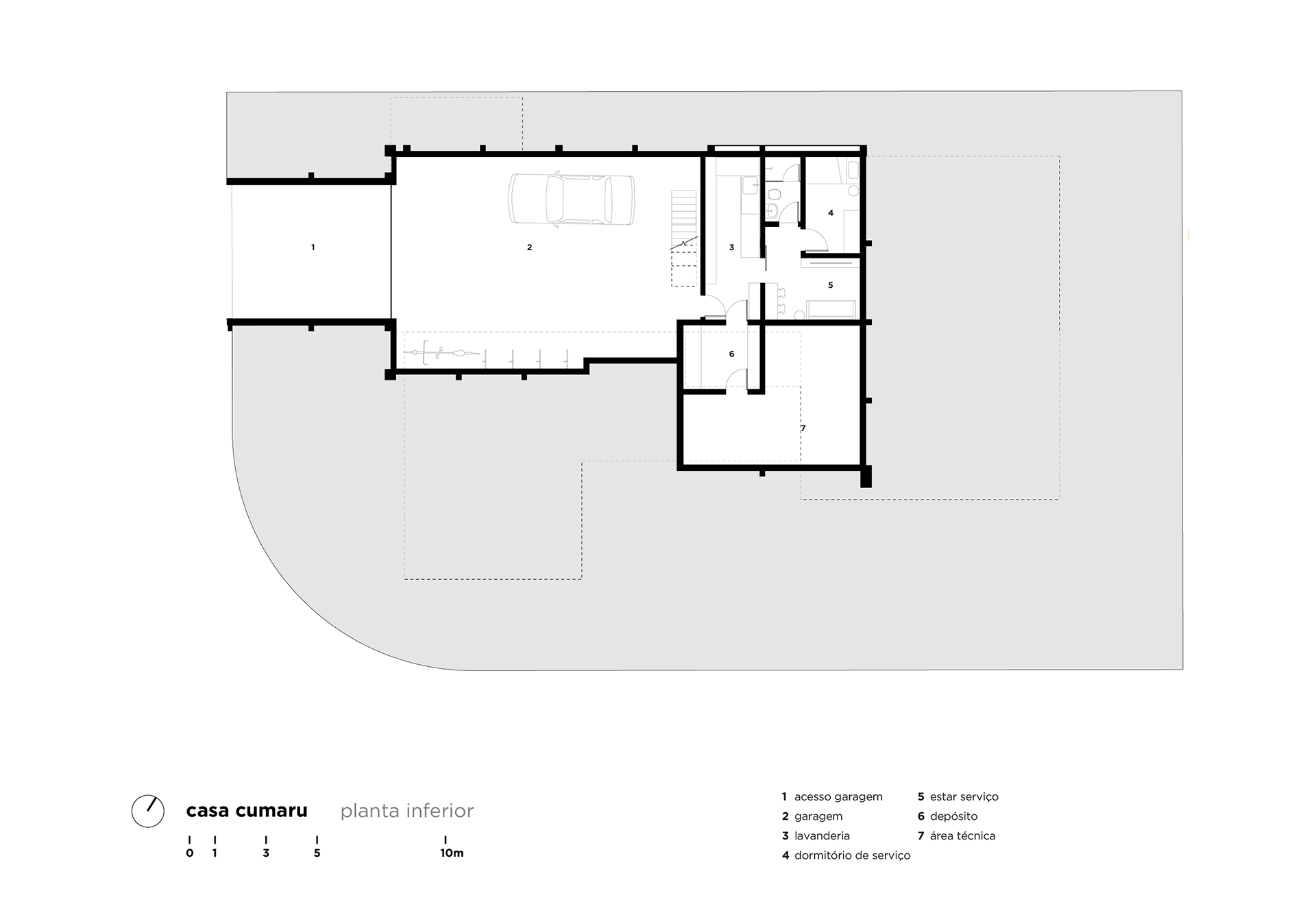
Social areas are located on the ground floor, the garage in the basement, and the bedrooms on the upper floor. A veranda and a swimming pool complete the program. However, this basic layout—resembling that of a typical two-story house—fails to explain the project without describing its structural concept. A sequence of four porticos suspends the upper volume, allowing the ground floor to be enclosed almost entirely in glass. On one side, the porticos are made up of four concrete pillars; on the other, just two pillars support a large 22-meter-long steel truss that holds the four concrete beams above the roof slab—these beams are responsible for suspending the entire house.
This main structure, a mix of concrete and steel, contains all of the residence's interior spaces and also covers a double-height veranda and part of the pool. The extended program includes living rooms, kitchen, veranda, and sauna on the ground floor; garage, service areas, and technical rooms in the basement; and four suites, an office, and a home theater on the upper floor.
In addition to the structural system and large glass panels, wood plays a prominent role in the house. Cumaru wood slats are used as cladding on the upper floor, folding doors in the bedrooms, operable louvers above the pool, a wooden deck on the veranda, and charred wood in the gourmet area.
The house’s lightness and transparency allow for full integration between interior and exterior, between architecture and landscape. There is no clear boundary between built and natural elements—plants sometimes invade the interior, and sometimes are only separated by light glass panels. At times they form the outer landscape, and at others, they are sheltered under the large slab beside the pool, composing a cohesive whole made of concrete, steel, glass, wood, water, and vegetation.
This main structure, a mix of concrete and steel, contains all of the residence's interior spaces and also covers a double-height veranda and part of the pool. The extended program includes living rooms, kitchen, veranda, and sauna on the ground floor; garage, service areas, and technical rooms in the basement; and four suites, an office, and a home theater on the upper floor.
In addition to the structural system and large glass panels, wood plays a prominent role in the house. Cumaru wood slats are used as cladding on the upper floor, folding doors in the bedrooms, operable louvers above the pool, a wooden deck on the veranda, and charred wood in the gourmet area.
The house’s lightness and transparency allow for full integration between interior and exterior, between architecture and landscape. There is no clear boundary between built and natural elements—plants sometimes invade the interior, and sometimes are only separated by light glass panels. At times they form the outer landscape, and at others, they are sheltered under the large slab beside the pool, composing a cohesive whole made of concrete, steel, glass, wood, water, and vegetation.