BONTEMPO FLAGSHIP
SÃO PAULO - SP, BRAZIL
Project specifications
Site area - 1.537m²
Building area - 2.000m²
Project beginning - 2022
Construction completion - 2025
Building area - 2.000m²
Project beginning - 2022
Construction completion - 2025
Team
Authors - Fernando Forte, Lourenço Gimenes, Rodrigo Marcondes Ferraz
Managers - Gabriel Mota, Sonia Gouveia, Priscylla Hayashi, Talita Broering
Coordinators - Geronimo Palarino
Contributors - Breno Quaioti, Bruno Suman, Carolina Hirata, Eduardo Saran, Felipe Barrradas, Gabriel Baptista, Gabriela Sereno, Giulia Petiti, Jhonny Lima, Mariana Sarto, Victor Lucena
Photographer - Fran Parente
Constructor - RMR
Landscape designer - Yapó Orsini
Lighting designer - Foco LD
.
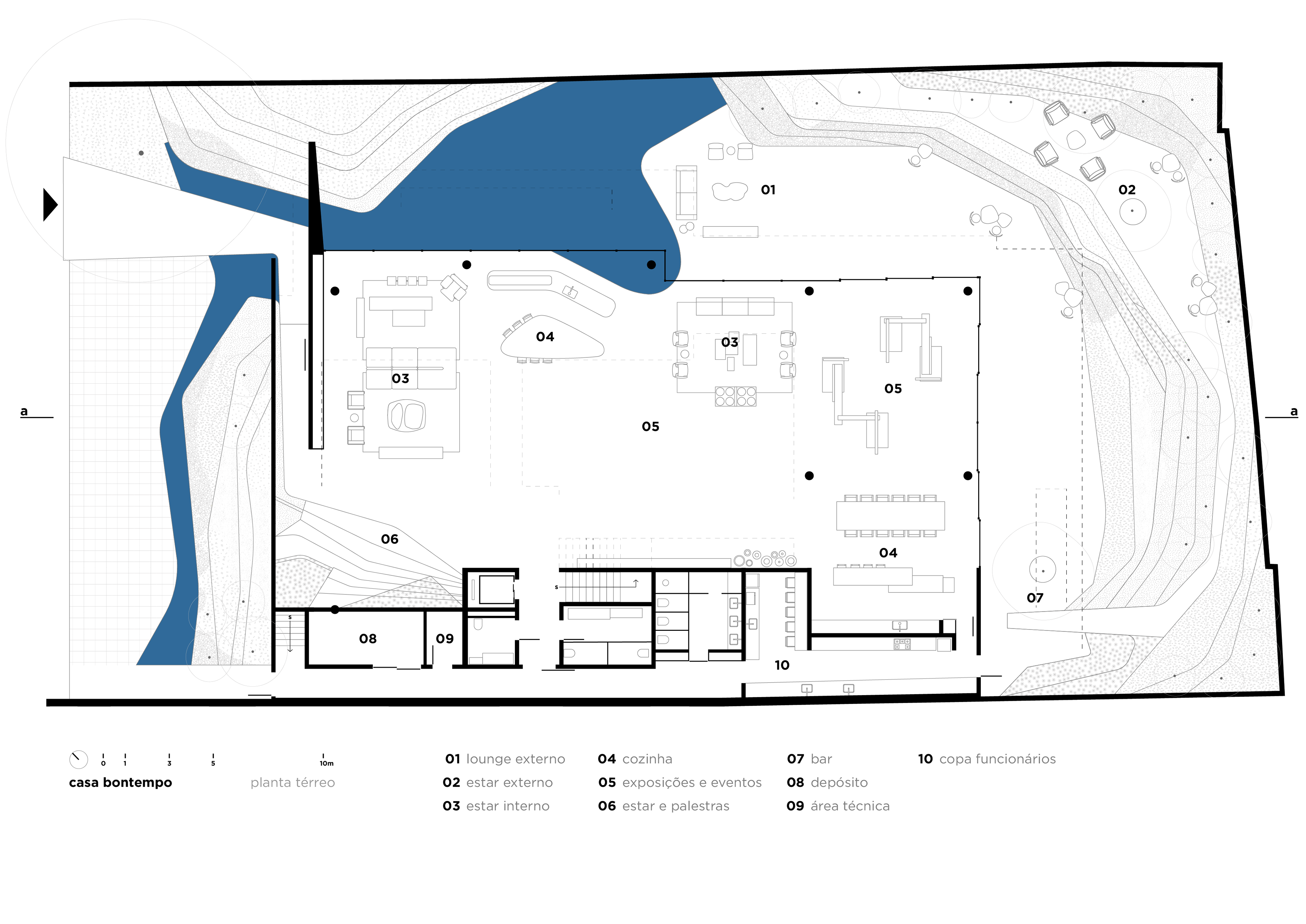
In the design of the Bontempo showroom, a renowned Brazilian brand of custom-made furniture, the brief brought us a pleasant surprise from the very beginning. At first, we assumed it would be a large retail store, but in fact it is a showroom in the purest sense. With no sales operations, the space is entirely dedicated to activations and events, functioning as a brand hub. It is conceived not only to welcome clients, but also to host art, literature and architecture exhibitions, book and magazine launches, award ceremonies, and many other activities, positioning the brand within a broader and more dynamic cultural context.
The site, located on Avenida Rebouças, one of São Paulo’s main thoroughfares, presented several challenges that shaped our architectural concept. Among the constraints were a height limit of 10 meters, as well as specific setback and site coverage regulations. Our core design strategy was to create a building that explores the staggered arrangement of planes on the upper floors and roof, culminating in a large zenithal opening.
To ensure generous and open spaces, we adopted a hybrid structural system: concrete columns at the perimeter and steel beams at the roof, which support post-tensioned slabs through tension rods. This configuration allows for the creation of varied ceiling heights — single, double, and triple — according to the overlapping of planes, which are subtly offset in elevation. Independent steel walkways connect these levels, forming a dynamic circulation loop throughout the space.
The main access to the showroom, facing Avenida Rebouças, is conceived as a tunnel formed by two exposed concrete planes. This narrow and dark corridor, which tells the company’s story, creates a sense of anticipation and surprise, so that upon crossing it, visitors emerge into a vast, naturally lit space surrounded by gardens — a true and unexpected urban oasis.
In the landscape design, we used corten steel plates to create terraced levels in the front and interior gardens, referencing contour model studies, which are very familiar to architects. This concept was further enhanced by the work of landscape designer Luis Carlos Orsini, who brought a harmonious and vibrant composition to the project.