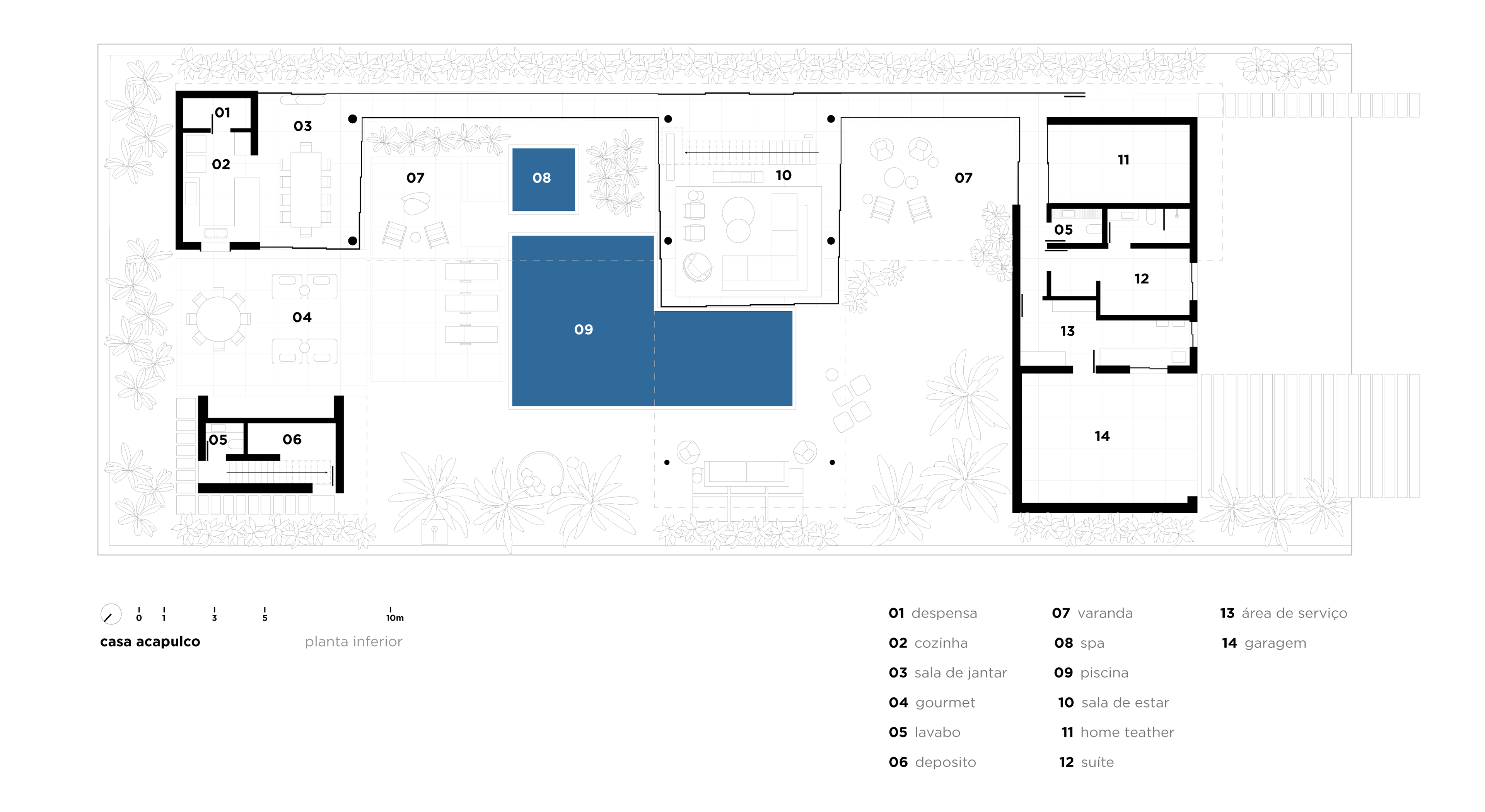
ACAPULCO HOUSE
GUARUJÁ - SP, BRAZIL
Project specifications
Site area - 1.020m²
Building area - 800m²
Project beginning - 2018
Construction completion - 2021
Building area - 800m²
Project beginning - 2018
Construction completion - 2021
Team
Authors - Fernando Forte, Lourenço Gimenes, Rodrigo Marcondes Ferraz
Managers - Desyree Niedo, Gabriel Mota, Sonia Gouveia
Coordinators - João Baptistella
Contributors - Bárbara Dolabella, Beatriz Brandt, Cintia Reis, Felipe Fernandes, Guilherme Prado, Guilherme Pulvirenti, Karina Nakaura, Mariana Lazero, Pedro Ocanhas, Victor Lucena, Vitória Colsato
Interns - Giulia, Lorenzi, Mariana Sarto, Matheus Soares, Michelle Vasques
Photographer - Fran Parente
Constructor - Orus Construções
Constructor - Orus Construções
Landscape designer - Juliana Freitas
Lighting designer - Castilha
.